世田谷区祖師谷6丁目 中古戸建 東京都世田谷区祖師谷6丁目|7,999万円の中古一戸建て|マックス不動産販売 東京荻窪店
| 価格 | 7,999万円値下がり ![]() |
||||
|---|---|---|---|---|---|
| 所在地 | 東京都世田谷区祖師谷6丁目
この地域周辺の物件を見る |
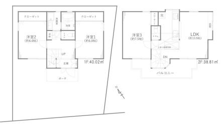
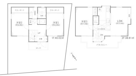
土地面積 | 100.07m² (30.27坪) | 建物面積 | 78.83m2 |
| 築年月 | 2001年3月築 | 間取り | 3LDK (-) | ||
| 交通 |
京王線 千歳烏山 徒歩18分
京王線 仙川 徒歩26分 京王線 芦花公園 徒歩26分 |
||||
| 特徴 |
|
|---|---|
| セールスコメント | - |
| 採光面 | 南西 | 構造/階数 | 木造/地上2階建 |
|---|---|---|---|
| 建ぺい率 | 40(%) | 容積率 | 80(%) |
| 駐車場 | 有 | 現況/引渡し | 空家/即時 |
| 土地権利 | 所有権 | 私道負担面積 | - |
| 接道状況 | 接道: 南西 8.7m 公道 道路幅: 4.9m | 用途地域 |
第一種低層住居専用地域
|
| セットバック | - | 法令上の制限 | - |
| 地目 | 宅地 | 地勢 | 平坦 |
| 建築確認番号 | 都市計画 | 市街化区域 | |
| 取引態様 | 仲介 | ||
| 情報更新日 | 2026年05月12日 | 次回更新日 | 2026年05月26日 |
| 小学校区 | 世田谷区立塚戸小学校 (東京都世田谷区) この学区の他の物件を見る |
中学校区 | 千歳中学校 (東京都世田谷区) この学区の他の物件を見る |
|---|
| 価格 | 万円 | ||
|---|---|---|---|
| 年利率 | % |
||
| ボーナス払い | 返済年数 | ||
| 頭金 | 直接入力する | 万円 | |

毎月のご返済額 |
ボーナス(×年2回) |
物件価格7,999万円 |
◇京王線「千歳烏山」駅 徒歩約18分
◇2026年3月リフォーム済
◇車2台駐車可能!