杉並区桃井1丁目 中古戸建 東京都杉並区桃井1丁目|7,990万円の中古一戸建て|マックス不動産販売 東京荻窪店
| 価格 | 7,990万円 ![]() |
||||
|---|---|---|---|---|---|
| 所在地 | 東京都杉並区桃井1丁目
この地域周辺の物件を見る |
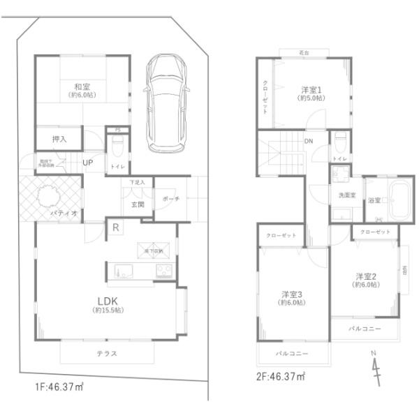
土地面積 | 101.98m² (30.84坪) | 建物面積 | 92.74m2 |
| 築年月 | 2005年1月築 | 間取り | 4LDK (-) | ||
| 交通 |
JR中央線 荻窪 徒歩12分
|
||||
| 特徴 |
|
|---|---|
| セールスコメント | - |
| 採光面 | - | 構造/階数 | 木造/地上2階建 |
|---|---|---|---|
| 建ぺい率 | 50(%) | 容積率 | 100(%) |
| 駐車場 | 有 | 現況/引渡し | 空家/即時 |
| 土地権利 | 普通借地権(地上権) 借地期間:19 借地料:30000 | 私道負担面積 | - |
| 接道状況 | 接道: 東 12.5m 公道 道路幅: 5.4m 接道: 北 5.2m 私道 道路幅: 4m |
用途地域 |
第一種低層住居専用地域
|
| セットバック | - | 法令上の制限 | - |
| 地目 | 宅地 | 地勢 | 平坦 |
| 建築確認番号 | 都市計画 | 市街化区域 | |
| 取引態様 | 仲介 | ||
| 情報更新日 | 2026年02月10日 | 次回更新日 | 2026年02月24日 |
| 小学校区 | 杉並区立桃井第一小学校 (東京都杉並区) この学区の他の物件を見る |
中学校区 | 井荻中学校 (東京都杉並区) この学区の他の物件を見る |
|---|
| 価格 | 万円 | ||
|---|---|---|---|
| 年利率 | % |
||
| ボーナス払い | 返済年数 | ||
| 頭金 | 直接入力する | 万円 | |

毎月のご返済額 |
ボーナス(×年2回) |
物件価格7,990万円 |
北東角地につき陽当り通風良好!
2025年12月リフォーム済み♪
JR中央線「荻窪」駅 徒歩約12分!